Актуальная цена
4 932 000 ₽
120 000 ₽ / м
2
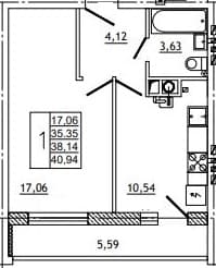
41,1 м
2
площадь
1
этаж
1
комнаты
Сдан
год здачи
ЖК «Нахимова»
Отзывы
Оставить отзыв
Сайт
Брокер