Актуальная цена
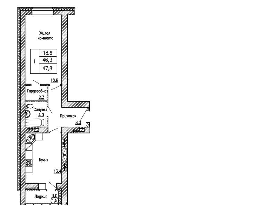
5 305 800 ₽
111 000 ₽ / м
2
47,8 м
2
площадь
9
этаж
1
комнаты
2026
год здачи
ЖК «ЖК «Композитор»»
Отзывы
Оставить отзыв
Сайт
Брокер